Aktuelles
Bienenbergerblick
Bodenacher- / Giebenacherstrasse Füllinsdorf
Neubau eines Reihenhauses mit 3 Einheiten.
Bauherrschaft privat
Wohnensemble Neuweilerstrasse 1 in Schönenbuch 'vo Schönebuech bis Ammel'
Planung und Ausführung 2020 bis 2024
Überbauung mit 4 Mehrfamilienhäusern und Autoeinstellhalle.
Umbau eines Denkmalgeschützten Sundgauhauses und einer Scheune im Ortskern.
Neubau von 2 MFHs. Komplette Wohnnutzung.
Bauherrschaft: privat
Neubau am Lohweg in Ettingen
Baugesuch in Erarbeitung, Ausführung 2024 + 2025
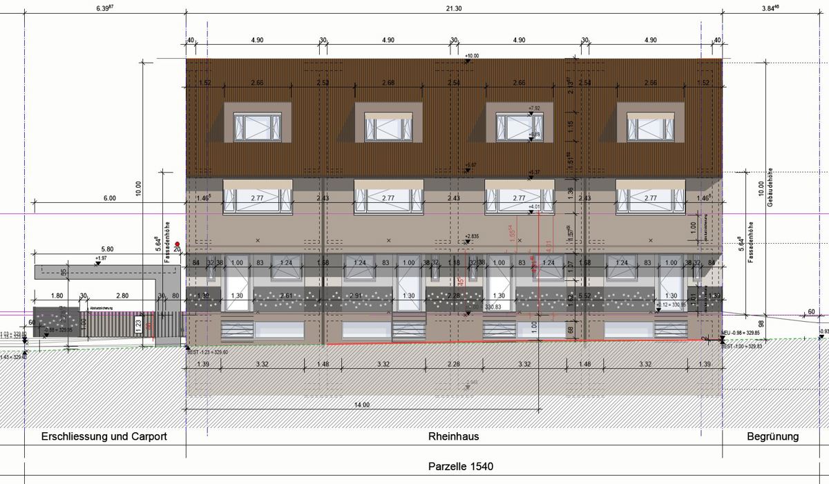
Neubau eines Reihen- Einfamilienhauses mit 4 Einheiten und einem Carport.
Entwicklung, Planung und Ausführung.
Bauherr: privat
Neubau Schauenburgerstrasse Liestal
Entwicklung, Planung, Ausführung
Neubau in kompletter Holzbauweise.
2 Mehrfamilienhäuser mit 28 Wohnungen und Autoeinstellhalle.
Baustart Februar 2025.
Bauherr: privat
Leimattstrasse Mumpf
Projektstand: Baugesuch in Prüfung
Arealüberbauung mit 3 Mehrfamilienhäusern am Ende der Bauzone in Mumpf.
Komplette Unterkellerung und Autoeinstellhalle, oberflächlich Parkanlage und individuelle Erschliessung.
23 Wohneinheiten
Bauherrschaft: Immobiliengesellschaft
Ersatzneubau von 3 MFHs an der Birs
Nasenweg in Basel
Neubau von ca. 80 Wohnungen inkl. Erweiterung der Autoeinstellhalle.
Wettbewerb 2022, Projektierung und Ausführung als GP.
Projektstand: Baugesuch in Prüfung
Bauherrschaft: Baugenossenschaft





































